
HD Type European Hoist ไฟฟ้าคานเดี่ยวแบบโม่
European Single Crane เครนเหนือศีรษะเป็นเครื่องจักรขนาดเล็กที่ออกแบบและผลิตตามมาตรฐาน FEM และ DIN ซึ่งมีเทคโนโลยีขั้นสูงและการออกแบบที่สวยงาม แบ่งออกเป็นประเภททั่วไปและชนิดแขวนลอยรองรับการใช้งานรอกไฟฟ้ายุโรปมาตรฐานเหมาะสำหรับการจัดทำเวิร์กช็อปและการจัดการวัสดุคลังสินค้าการประกอบชิ้นส่วนที่มีความแม่นยำสูงและสถานที่อื่น ๆ
HD Type European Hoist ไฟฟ้าคานเดี่ยวแบบโม่
คำอธิบายสั้น ๆ:
European Single Crane เครนเหนือศีรษะเป็นเครื่องจักรขนาดเล็กที่ออกแบบและผลิตตามมาตรฐาน FEM และ DIN ซึ่งมีเทคโนโลยีขั้นสูงและการออกแบบที่สวยงาม แบ่งออกเป็นประเภททั่วไปและชนิดแขวนลอยรองรับการใช้งานรอกไฟฟ้ายุโรปมาตรฐานเหมาะสำหรับการจัดทำเวิร์กช็อปและการจัดการวัสดุคลังสินค้าการประกอบชิ้นส่วนที่มีความแม่นยำสูงและสถานที่อื่น ๆ

มันสามารถนำมาใช้กันอย่างแพร่หลายในการผลิตเครื่องจักรโลหะปิโตรเลียม Petrifaction พอร์ตรถไฟการบินพลเรือนอาหารการผลิตกระดาษการก่อสร้างโรงงานอุตสาหกรรมอิเล็กทรอนิกส์คลังสินค้าและสถานการณ์การจัดการวัสดุอื่น ๆ esp. นำไปใช้กับการจัดการวัสดุที่ต้องการตำแหน่งที่แม่นยำส่วนประกอบประกอบชิ้นส่วนขนาดใหญ่ที่แม่นยำ

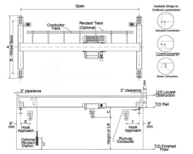
ภาพรายละเอียด:

การร่างภาพวาด:

พารามิเตอร์ทางเทคนิค:
ระยะ | ม. | 7.5 | 10.5 | 13.5 | 16.5 | 19.5 | 22.5 | 25.5 |
ความจุ | เสื้อ | 1 ~ 12.5t | ||||||
น้ำหนักรวม | กิโลกรัม | 1781 ~ 12086 | ||||||
น้ำหนักรถเข็น | กิโลกรัม | 405 ~ 740 | ||||||
แม็กซ์ โหลดล้อ | kn | 13.5 ~ 90.94 | ||||||
รางท่องเที่ยว | P24 P43 ~ | |||||||
ความเร็วในการยก | เมตร / นาที | 0.8 / 5 | 0.8 / 5 | 0.8 / 5 | 0.8 / 5 | 0.8 / 5 | 0.8 / 5 | 0.8 / 5 |
ยกสูง | ม. | ≥ 6 | ≥ 6 | ≥ 6 | ≥ 6 | ≥ 6 | ≥ 6 | ≥ 6 |
กำลังมอเตอร์ทั้งหมด | กิโลวัตต์ | 4.31 | 4.31 | 4.31 | 4.31 | 4.67 | 4.67 | 4.67 |
ความเร็วของเครน | เมตร / นาที | 3-30 | 3-30 | 3-30 | 3-30 | 3-30 | 3-30 | 3-30 |
ความเร็วรถเข็น | เมตร / นาที | 2-20 | 2-20 | 2-20 | 2-20 | 2-20 | 2-20 | 2-20 |
หน้าที่การทำงาน | M5 / A5 | |||||||


English
Eesti
Ar hñä ar Keleitaluoaotuomi
türkiye
magyar
عربي
српски (ћирилица)
Melayu
suomi
Italiano
Cymraeg
slovenčina





